Nová budova by měla vyrůst na místě současných starých hokejbalistických šaten. Ty jsou už opravdu letité, neboť byly původně zařízením staveniště při výstavbě sídliště Sychrov. Po výstavbě nového hřiště s umělou trávou, která nahradila škvárový povrch, došlo i k osvětlení tohoto sportoviště a stavbě nového objektu šaten pro fotbalisty. Ten původní však i nadále sloužil a slouží svému účelu, tedy jako šatny oddílu hokejbalu.
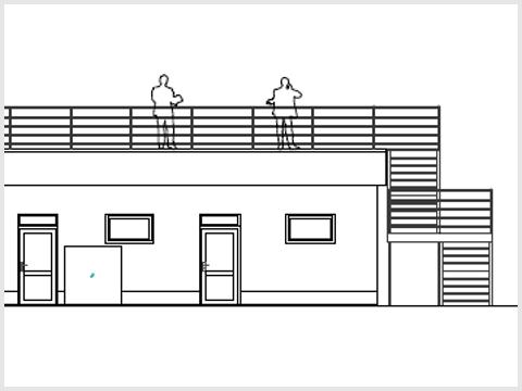
"Jejich stav je už dlouhodobě nevyhovující. Původně se uvažovalo o jejich opravě, nakonec jsme se ale rozhodli pro demolici a výstavbu nového objektu," uvedl místostarosta Tomáš Pifka s tím, že v něm vzniknou dvě šatny pro fotbalisty a dvě šatny pro hokejbalisty s vlastním sociálním zázemím, tedy WC a sprchami, a dále společná technická místnost. "Chceme, aby sportoviště měla kvalitní zázemí odpovídající současným požadavkům. Navíc jsme dali projektantovi za úkol, aby střecha nového objektu byla pochůzí a mohlo na ní vzniknout místo pro diváky. Okolí hřiště totiž neposkytuje pro fanoušky dostatečný prostor, a oni musejí stát v bezprostřední blízkosti frekventované silnice ze Sychrova," řekl dále Pifka.
Smlouva s projektantem byla podepsána v prosinci loňského roku, termín předání kompletní projektové dokumentace je dán na 31. července. "Zahájení stavebních prací předpokládáme na podzim. Kompletně by šatny měly být hotovy na jaře příštího roku," uzavřel místostarosta.


Komentáře